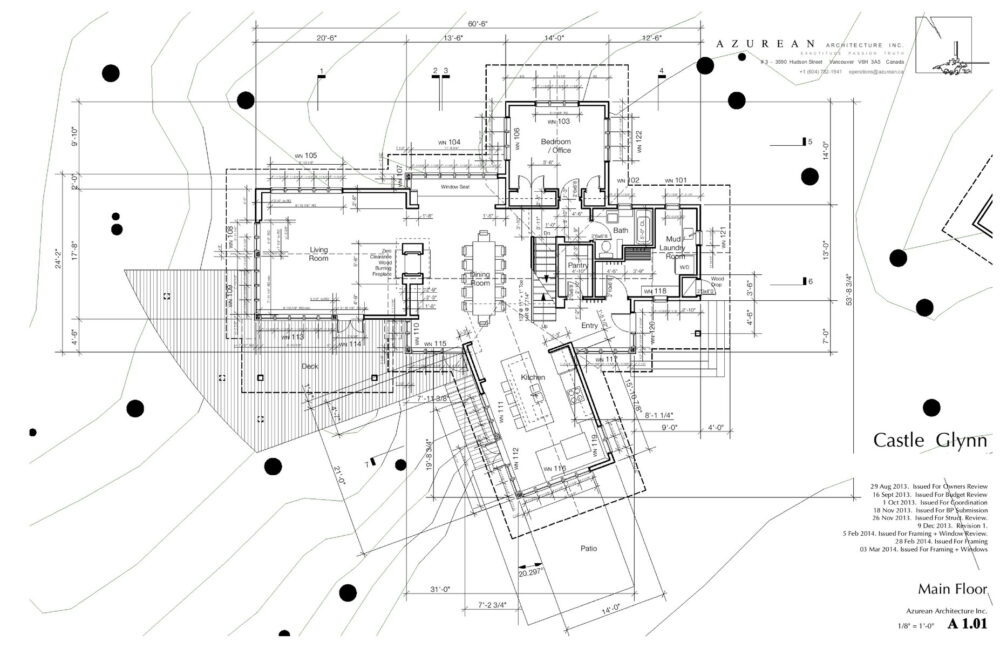
Castle Glynn