Skip to content
Azurean
Home/Contact
Architecture
Sculptures / Art / Industrial Design
Project Lists
Colin Kwok
Previous
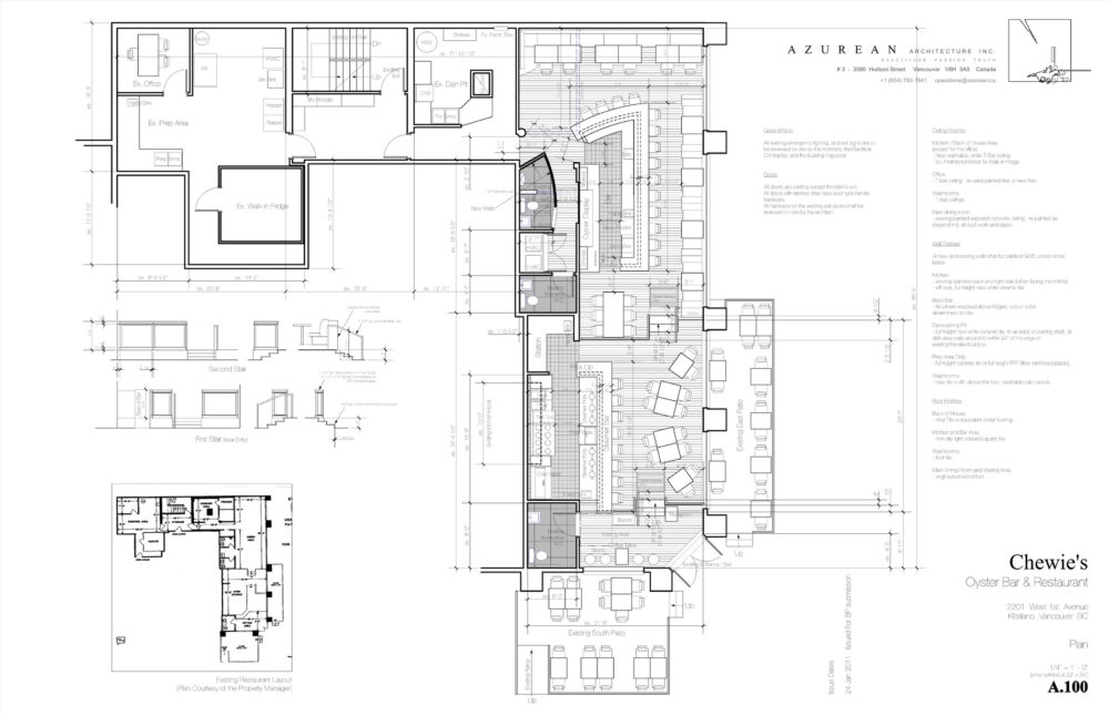
Chewie’s Restaurant
Next
×