Contact
List of Architectural Projects
Architecture
List of Sculptures
Sculptures / Art / Industrial Design
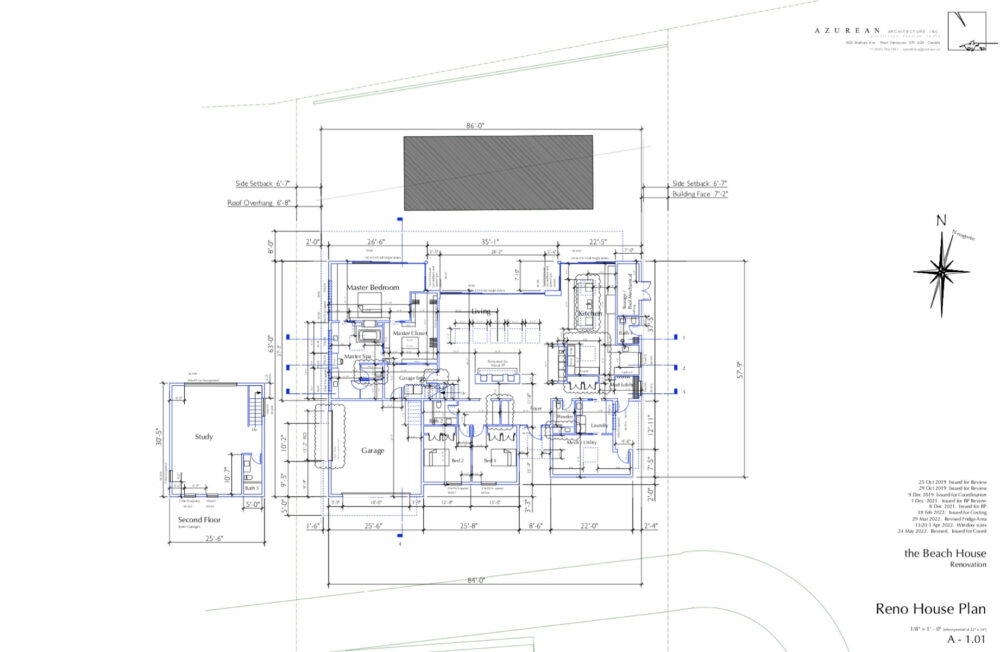
The Beach House
×