Skip to content
Azurean
Home/Contact
Architecture
Sculptures / Art / Industrial Design
Project Lists
Colin Kwok
Previous
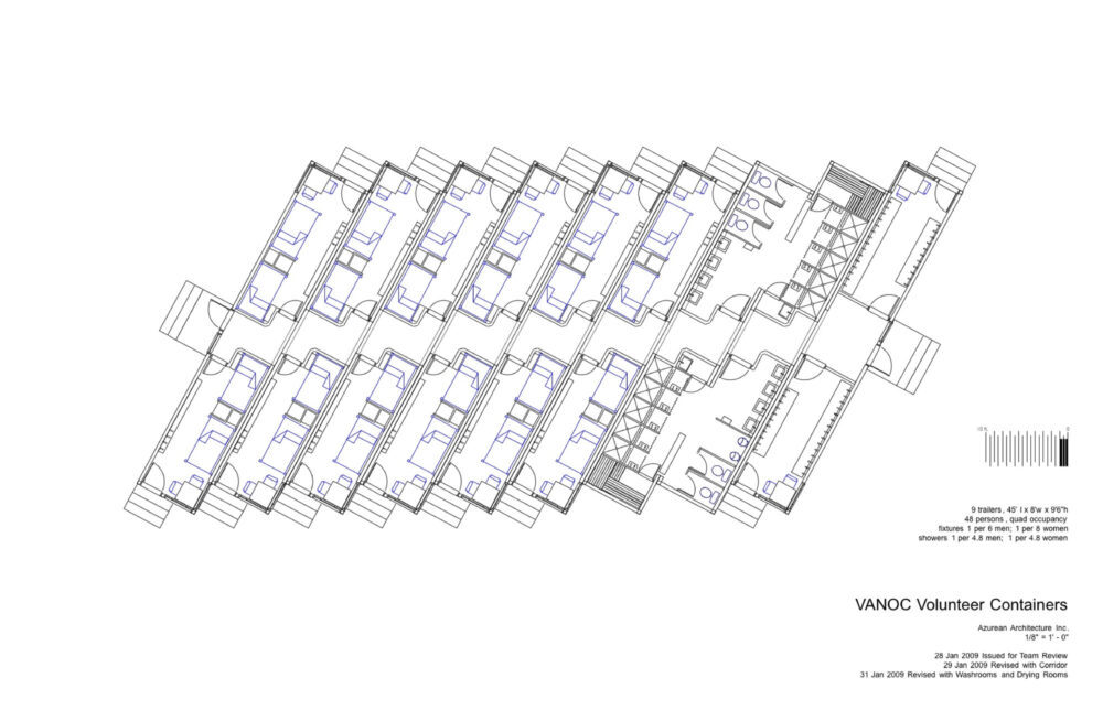
Whistler Olympic Volunteer Housing
Next
×